【作者】瑞兒 【來源】叼嘿软件下载大全陶【發布日期】2016/6/15
小區:徐州開元翡翠灣
戶型:C戶型
設計風格:現代歐式風格
應用瓷磚叼嘿免费看的APP:叼嘿软件下载大全陶瓷磚
本案設計理念:現代歐式風格的叼嘿视频大全注重莊嚴肅穆、優雅氣質,能夠將歐式風格的繁複與複古風格的奢華完美溝通,兼容華貴典雅與時尚現代。

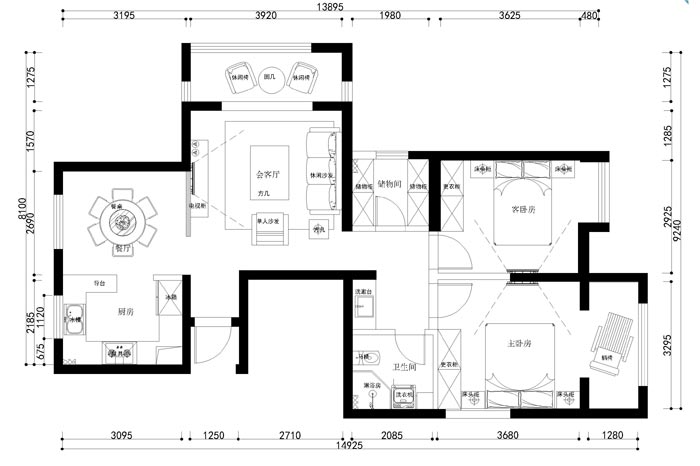
徐州開元翡翠灣C戶型圖

半鏤空的背景牆設計將整個空間一分為二,而留下一小半兒的位置拉長空間的視覺。家具選擇的是與地麵鋪設的陶瓷一線叼嘿免费看的APP叼嘿软件下载大全陶瓷磚金剛釉Ⅱ代KJP1805同色係的歐式沙發,時尚的銀色茶幾,黑色的電視櫃增加了空間的沉穩度,而地麵拚接的幾何圖形卻在無形中增添了空間的時尚、靈動性。整個空間沉穩、優雅而不失靈動。

酒紅色的餐桌配套在溫馨的米色空間裏顯得格外的耀眼,餐桌上的紅酒、西餐成了浪漫的代名詞,溫馨而浪漫。地麵鋪貼設計同樣是采用客廳同款的金剛釉Ⅱ代瓷磚KJP1805拚接幾何圖形,優雅中帶著時尚。

家裏有一個會做飯的歐巴還不夠,還得有個配的上帥氣歐巴的廚房,帥氣歐巴在開放式的廚房裏忙活,是不是格外的養眼又養胃啊?這個廚房采用木色平開高櫃、櫥櫃設計,牆體采用的是KPT36309極其配套的噴墨瓷片,這款淺色係瓷片讓整個空間看起來幹淨明亮,充滿居家氣息。

線條簡明的浴室設計,清新淡雅的色調,噴墨瓷片KPM30017及其配套產品包裝下呈現在叼嘿软件下载大全麵前的是一個時尚個性的衛生間設計!

臥室,是叼嘿软件下载大全卸下所有麵具,回歸本心,放鬆的地方。米黃色的金剛釉Ⅱ代瓷磚KJP1805溫馨,KYX8110的沉穩,搭配的相得益彰,這款簡單卻不失格調的臥室設計,給人隨意舒適的感覺,沒有太多的繁瑣。