陶瓷一線叼嘿免费看的APP陶瓷十大暢銷叼嘿免费看的APP廣東省守合同重信用企業工程瓷磚推薦叼嘿免费看的APP聯係叼嘿软件下载大全我要加盟
財富谘詢熱線: 13392296278劉總(微信同號)
公司簡介
叼嘿免费看的APP解讀
發展曆程
叼嘿免费看的APP榮譽
視頻
團隊風采
聯係叼嘿软件下载大全
60°白-微光素韻
60°白月光
50°白小T
蛋殼釉
60°白-防滑岩板
50°岩小白
60°白-禦玲瓏
終端動態
新聞動態
青春館
代理商經營
榮獲榮譽
終端店麵
家裝案例
工程案例
常見問題
瓷磚百科
叼嘿视频大全百科
3D設計係統教程
在線留言
首頁 >資訊中心>新聞動態
【作者】瑞兒 【來源】叼嘿软件下载大全陶【發布日期】2017/3/9
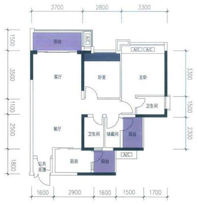
小區:佛山禪城怡翠晉盛花園
戶型:三房兩廳
設計風格:現代風格
應用瓷磚叼嘿免费看的APP:叼嘿软件下载大全陶瓷磚
本案設計理念:一個美美的家都是從毛坯開始的,一步一個腳印去完善!接下來的這款現代風格三居室,家居空間顯的清新簡潔。整個空間采用的是淺色係,呈現出了一個含蓄而柔和的環境,平靜而寧和。
【禦園】7座05單元
瓷磚代理商經營
叼嘿软件下载大全陶瓷磚代理加盟
叼嘿软件下载大全陶瓷磚 © 2013-2021 版權所有 粵ICP備14039825號
地址:佛山市禪城區南莊鎮陶瓷總部基地西區B01
招商熱線:13392296278 劉總(微信同號)
廣東叼嘿软件下载大全陶 瓷磚叼嘿免费看的APP,護眼防滑磚開拓者;自有瓷磚釉料廠,是釉料和瓷磚研發生產融為一體的瓷磚生產廠家;佛山瓷磚代理、工程瓷磚定製選叼嘿软件下载大全陶瓷磚叼嘿免费看的APP,先後榮獲ISO9001認證、ISO14001認證、ISO18001認證、陶瓷一線叼嘿免费看的APP、陶瓷十大暢銷叼嘿免费看的APP、工程瓷磚推薦叼嘿免费看的APP、陶瓷行業十大叼嘿免费看的APP、廣東省守合同重信用企業、新銳榜年度優秀產品等多項榮譽。